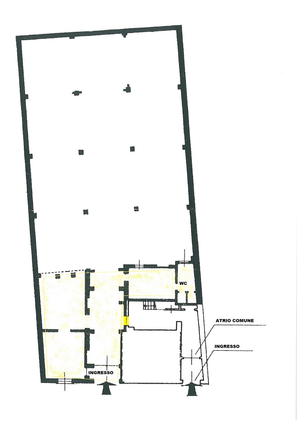
CAPANNONE CON UFFICI CA 600 MQ.
Possibilità cambio destinazione in residenziale.
Il tetto è CROLLATO.
IMMOBILFIN
Via Mentana, 4 - 22100 Como

CAPANNONE CON UFFICI CA 600 MQ.
Possibilità cambio destinazione in residenziale.
Il tetto è CROLLATO.
Riferimento: 359
Tipologia: Capannone
Arredato: %%Arredamento%%
Piano: 1° di 1
Ascensore: No
Portineria: No
Mq superficie: 600
Stato conservazione: Da ristrutturare
Stato: Libero
N. Locali:
Tipo cucina:
N. Camere:
N. Bagni: 1
Box: Nessuno
Riscaldamento:
Aria condizionata: No
Prezzo €: 160.000,00
Spese cond. annue €:
Caratteristiche
Efficienza energetica